Objektcode 614

ACHT ZWEI VIER - Coworking in Entwicklung

Short Facts

5020 Salzburg

Gesamtnutzfläche 229 m²
Erweiterte Wohngebiete, Erholungsgebiete

Nettokaltmiete: € 3.500,00

Zahlen & Fakten

Objektcode 614
Objektart Büro- / Praxisfläche
Objektkategorie Bürofläche
Bezirk Salzburg
Adresse Münchner Bundesstraße 3
Ort 5020 Salzburg
Verfügbar ab 01.10.2026
Gesamtnutzfläche des Objekts [m²] 229,00 ㎡
Baujahr 2025
Stockwerke 8
Heizwärmebedarf [kWh/m²a] 21.81
Klasse Heizwärmebedarf A
Gesamtenergieeffizienz-Faktor (fGEE) 0.44
Klasse Gesamtenergieeffizienz AA++
Nettokaltmiete 3.500,00 €
Betriebskosten exkl. Ust. auf Anfrage
Heizkosten exkl. Ust. auf Anfrage
Umsatzsteuer 700,00 €
Monatliche Gesamtbelastung inkl. Ust. 4.200,00 €
Kaution 3 Bruttomonatsmieten
Ablöse auf Anfrage

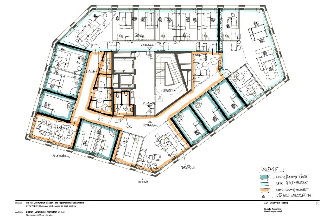
HEUTE EINZIEHEN – MORGEN DURCHSTARTEN

Die vollständig eingerichtete Büroeinheit für bis zu 10 Personen ermöglicht einen sofortigen Arbeitsbeginn. Ergänzend stehen hochwertige Gemeinschaftsbereiche wie Aufenthaltszone, Teeküche und ein modern ausgestatteter Besprechungsraum zur Verfügung. Die frequentierte Erdgeschosszone mit Gastronomie- und Fitnessangeboten bildet eine passende Ergänzung zu den Büroflächen in den oberen Geschossen. Die Öffnung der Altglan ermöglicht eine energieeffiziente Vollklimatisierung mit Bachwasserkühlung und Fernwärme.

Die Fläche ist Teil eines neuen, aktuell in Entwicklung befindlichen Nutzungskonzeptes am Standort.

______________________________________________

BEZUGSFERTIG AUSGESTATTET

- Schnelles Internet, Strom & Nebenkosten inklusive

- Möblierte & moderne Arbeitsplätze (höhenverstellbare Tische, Stühle, Regale, Beleuchtung)

- Reinigungsservice

- digitale Zugangskontrolle & eigener Briefkasten

- Beschilderung im Leitsystem des Gebäudes

- Besucherparkplätze in der Tiefgarage mit Ladestationen

______________________________________________

DIE VORTEILE AUF EINEN BLICK

- Die Büroeinheit ermöglicht einen unkomplizierten Einstieg mit klar kalkulierbaren Kosten.

- Moderne Bürofläche an einem gut erreichbaren Salzburger Standort

- Klare Sichtbarkeit an einer zentralen Einfahrtsachse

- Öffentlich bewirtschaftete Tiefgarage mit Ladestationen für Besucher

Ideal für Unternehmen, die flexibel bleiben und dennoch eine stabile, hochwertige Arbeitsumgebung nutzen möchten.

______________________________________________

BEZUGSFERTIG ENDE 2026

Das Coworking Angebot ist Teil eines entstehenden Nutzungskonzeptes, das eigenständige Arbeitsräume mit gemeinschaftlich genutzten Funktionen verbindet. Die Konzeption befindet sich aktuell in Entwicklung.

Lage & Ausstattung

Das Gebäude Ensemble mit acht, zwei und vier Geschossen, nach Plänen von Dietrich | Untertrifaller Architekten, setzt an einer der zentralen Zufahrtsachsen Salzburgs einen markanten städtebaulichen Akzent.

Die Lage bietet eine direkte Anbindung an die Autobahn A1, den Flughafen Salzburg sowie Bus- und Bahnverbindungen. Eine Tiefgarage mit rund 90 Stellplätzen ergänzt die gute Erreichbarkeit für Mieter und Besucher.

Der Standort ist besonders geeignet für Unternehmen aus Finance & Consulting, Technologie & Engineering sowie wirtschaftsnahen Dienstleistungen.

Flächen & Widmung

Die folgenden Grundstücksinformationen werden über eine Koordinatenabfrage über das Digitale Salzburger Raum-Informations-System SAGIS durchgeführt. Sollten vom User falsche Geokoordinaten bei der Inserats Erstellung oder via Makler-Software-Schnittstellen übermittelt worden sein, kann das Ergebnis von der tatsächlich angebotenen Immobilie divergieren.

SAGIS Flächenwidmung

KG-Name Liefering II (56528)
KG-Nummer 56528
Parzellennummer 2392/53
Einlagezahl 1519
Fläche lt. Grundbuch 705 m²
Widmung Erweiterte Wohngebiete,
Erholungsgebiete

Sie haben Interesse? Ihr Kontakt

PRISMA Salzburg

PRISMA Zentrum für Standort- und Regionalentwicklung GmbH

Straße
Strubergasse 26
PLZ/Ort
5020 Salzburg
Tel.
+43662875262
E-Mail
salzburg@prisma-zentrum.com
Web
www.prisma-zentrum.com/standorte/salzburg